有问题吗?
雷竞技newbee官网赞助商技术顾问为您服务!
电话:0512-57908019
邮箱:ksdsv_ye@126.com
技术支持:13338056190

- 气动马达请加微信咨询

- 气动搅拌机请加微信咨询

有问题吗?
雷竞技newbee官网赞助商技术顾问为您服务!
电话:0512-57908019
邮箱:ksdsv_ye@126.com
技术支持:13338056190


雷竞技newbee官网赞助商船舶专用气动搅拌器适用于溶解、混合、反应、防沉淀等多变的搅拌场合。产品自带金属栈板方便叉车自由移动、安置方便。根据溶液及技术推荐可选配DAM6/DAM7马达,马达可直接装于罐体上同时可根据不同的搅拌要求,选用不同的搅拌浆叶形式,适用于各种溶液。
雷竞技newbee官网赞助商船用搅拌器分析:假设-船厂 每年造20艘船,每条船用200,000 L通用底漆,S9Faa : 4,000,000
如果用传统的20开包装,则需要: 200,000 - 20升桶 200,000 - 5升桶
使用雷竞技newbee官网赞助商大型专用搅拌器后,以下费用可以节省:
1)桶内估算的油漆残留量(按0.5%估算)
200,000x20x0.5% = 20,000L
20,000LxRMB 30/L = RMB 600,000
2)报废废油漆桶费用,按每套废油漆桶重3 kg ,危化品处置费
RMB 5/kg200,000x 3kgxRMB 5/kg = RMB 3,000,000
3)节省木托板的费用,大约7000木托板,木托板单价RMB 60/个7,000х60 = RMB 420,000
每年估算的直接费用节省:大约每年节省4,000,000人民币

活塞式船用气动搅拌器技术参数:

说明:
介质:空气、氮气或者惰性气体。
本体材料:铁铸
密封材料:PA密封,VITO氟橡胶密封可选(高温150摄氏度适用)。
证书:No.CJEx19.0349X
选项:装配行星减速箱、斜齿轮减速箱、蜗轮蜗杆减速箱、大型游星减速箱,进气节流阀,流量比例阀,压力比例阀控制。
功能(作用):可正反转,过载使用不会损坏马达本身。防爆,无极调速,无油工作版本可选。
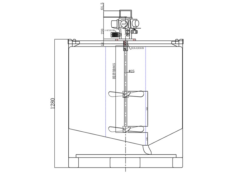
活塞式船用气动搅拌器安装平面示意图











船用气动搅拌器客户案例:







气动搅拌机车间

雷竞技newbee官网赞助商55加仑气动搅拌机配不锈刚桶盖

气动搅拌机车间

55加仑气动搅拌器气动升降柱

气动搅拌机车间

双气缸专用气动搅拌机带防护装置 可按客户需求定制

活塞式气动马达1个月包换,3年全国联保

专注raybet电竞官网行业15年,大品牌有保障

500强企业之选,服务客户超过10000国内外企业




咨询热线
0512-57908019
售后咨询

截图发销售,享马达九五折优惠

抖音二维码